Offener Realisierungswettbewerb 2023 | mit Station C23 Landschaftsarchitekten | 2.100 qm BGF








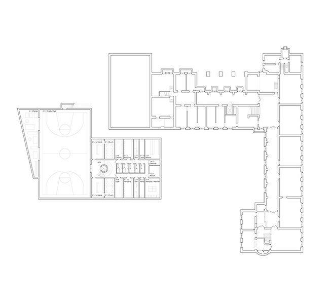
In Bern soll ein Erweiterungsneubau für die Volksschule Breitfeld entstehen. Die bestehende, als schützenswert eingestufte Schulanlage soll dabei um Unterrichtsräume, eine Mensa und eine Einfeldturnhalle ergänzt werden.
Der Erweiterungsneubau wird als viergeschossiger, rechteckiger Baukörper orthogonal zur bestehenden Anlage positioniert. Dadurch wird die Zugehörigkeit des Neubaus zur restlichen Schulanlage manifestiert und die übergeordnete Inselartigkeit der gesamten Parzelle im städtebaulichen Kontext betont.
Der Fußabdruck des Neubaus wird durch die Größe der halb eingegrabenen Sporthalle bestimmt. Die Erschließung der darüber liegenden Schul- und Aufenthaltsräume erfolgt über einen skulpturalen, außenliegenden Treppenturm auf der Ostseite. Dieser Turm verankert den Neubau auf dem Schulhof und bildet das fehlende Gegenstück zum Kopfbau des Bestands. Der Schulhof wird über die Treppenskulptur mit dem Spielgarten auf der Dachterrasse verbunden.