Realisiertes Projekt 2023 | 510 qm BGF









Auf Initiative eines eigenständigen Trägers der Kinder- und Jugendhilfe sollte eine stationäre Einrichtung entstehen, die bis zu zehn Kindern ein neues Zuhause gibt.
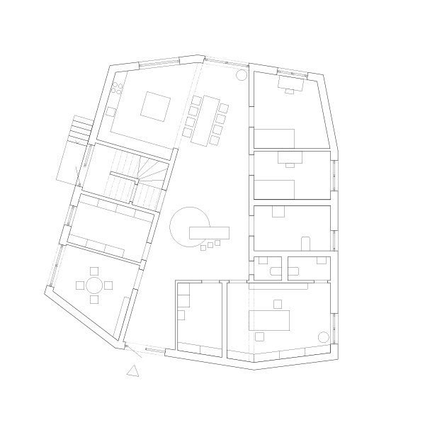
Der polygonale, zweigeschossige Baukörper mit einem leicht geneigten Satteldach interpretiert die Vorgaben des Bebauungsplans und setzt sich damit bewusst von der Nachbarbebauung ab. Das Haus erhält eine eigenständige Gestaltung mit hohem Identifikations- und Wiedererkennungswert.
Das Erdgeschoss nimmt neben dem Personal- und Elternbereich im Wesentlichen einen großen Gemeinschaftsbereich mit Küche auf. Das Obergeschoss ist den Kinderzimmern vorbehalten, die um eine gemeinsame Spielmitte herum gelagert sind. Das Projekt wurde 2023 fertiggestellt.