Realisiertes Projekt 2021 | 2.000 qm BGF | 2,0 Mio EUR | Sächsischer Staatspreis für Ländliches Bauen 2023, Anerkennung













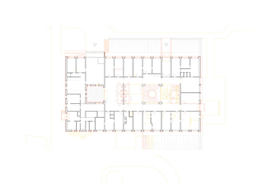
Das Landambulatorium in Dommitzsch wurde Anfang der 1970er Jahre als überregionales Ärztezentrum der DDR errichtet und wird noch heute von verschiedenen Arztpraxen genutzt. Das teilweise in das Erdreich vergrabene, zweigeschossige Gebäude weist einen hohen Sanierungsbedarf auf, der bei laufendem Betrieb gedeckt wird.
Neben der energetischen Ertüchtigung und Aufwertung der Fassade durch keramische Fliesen werden die öffentlich zugänglichen Erschließungsflächen im Erdgeschoss umstrukturiert und neu gestaltet. Zwei bestehende Lichthöfe, die aufgrund ihrer zu geringen Dimension derzeit nicht maßgeblich zur Belichtung der innenliegenden Flure beitragen können, werden filigran überdacht. Es entsteht eine großzügige Erschließungszone, die über eine skulpturale Wendeltreppe beide Geschosse miteinander verbindet. Im Untergeschoss wird die Stadtbücherei neu verortet, barrierefrei erschlossen und fortan vollständig mit Tageslicht versorgt.