Kooperativer Planungswettbewerb 2023 | mit Panzer und Oberdörfer Architekten und Stefan Fromm Landschaftsarchitekten | 4.500 qm BGF






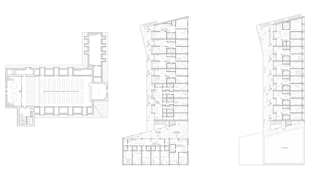
Die Christuskirche in Reutlingen soll zu einem einladenden und identitätsstiftenden Ort für alle Bevölkerungsgruppen umgenutzt werden. Im Zuge dessen wird der Kirchenraum umgenutzt und um eine Wohnbebauung erweitert.
Der vom Architekten Hannes Mayer 1935 fertiggestellte, denkmalgeschützte Kirchenbau wird mit behutsamen und auf das Nötigste beschränkten Eingriffen zu einem flexibel nutzbaren und einladend gestalteten Raum umgenutzt. Alltägliche Beratungen finden genau so wie kleine Konzerte, Besprechungen, Gottesdienste oder die Vesperkirche ihren Platz.
Der Neubau spannt mit der Kirche gemeinsam einen Quartiershof auf. Der Wohnungsmix aus insgesamt 21 Wohnungen wird als einfacher Holz-Hybridbau konzipiert. Die durch die Nutzung angestrebte soziokulturelle Nachhaltigkeit wird auch baulich manifestiert, der Neubau steht sinnbildlich für einen sorgsamen und verantwortungsvollen Umgang mit der Schöpfung.